Unsere Doppel- und Reihenhäuser vereinen intelligente Raumaufteilung, massive Bauweise und hohe Energieeffizienz.
Sie bieten Raum für Familien, Gemeinschaft und individuelle Lebensentwürfe – clever geplant, hochwertig ausgestattet und massiv gebaut.
Ob als behagliches Eigenheim oder wertbeständige Investition: Hier entstehen Zuhause-Geschichten, die lange tragen. Deshalb muss Ihr Doppelhaus individuell geplant werden, sprechen Sie uns an!
Haus 2.7
Haus 2.8
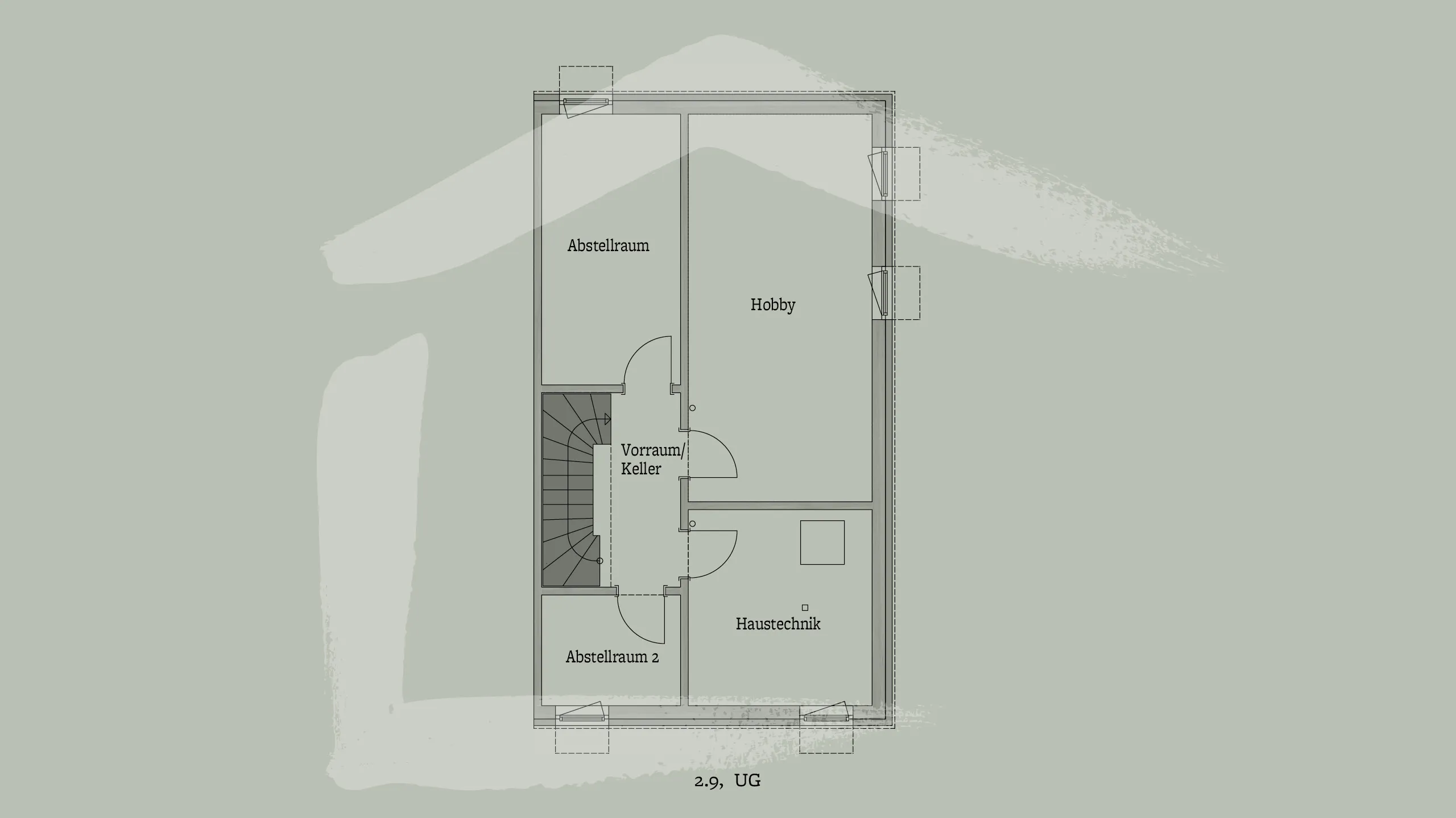
Haus 2.9
Haus 2.10
5 Lektionen
11 Minuten
Was muss ich bei der Planung eines Grundrisses beachten?
Mehr dazu im
Hauser-Wiki



Was steht hinter dem Wertesiegel "Ethics in Business"?
Seit 2017 trägt HAUSER das Wertesiegel „Ethics in Business" des Instituts für Wirtschaftsethik der Universität St. Gallen für umweltbewusstes und faires Handeln. In die Werte-Allianz des Mittelstands werden Unternehmen aufgenommen, die nachweislich ökologisch, ökonomisch und sozial handeln.
47 Jahre ohne Rechtsstreit – wie geht das?
Seit der Unternehmensgründung vor mehr als 40 Jahren haben wir über 2.000 Massivhäuser realisiert, ohne einen einzigen Rechtsstreit führen zu müssen. Weil es auf unseren Baustellen keine Herausforderungen gibt? Nein. Weil wir keine Fehler machen? Natürlich ebenso nein. Sondern weil wir jedes Projekt von Anfang an ehrlich und partnerschaftlich angehen und unseren Baufamilien besondere Sicherheiten bieten: Mit bewährten Hauskonzepten und Beratungsabläufen gestalten wir den Weg bis zum Vertrag eng und ausführlich. Als Bauherr hast du von Anfang an Planungssicherheit. Alle Kosten, auch die rund ums Bauen, benennen wir dir grundsätzlich immer schon zu Beginn. Dein Vorteil: Finanzierungssicherheit. Jede unserer Baufamilien ist Teil der Hauser-Bauherren-Gemeinschaft. Der intensive Austausch, zum Beispiel auf unseren Bauherrenabenden, schafft Vertrauenssicherheit
Was ist der "Echt HAUSER"-Standard?
Unser „Echt Hauser“-Standard bietet ein Ausstattungsniveau, das sich durch hochwertige Materialien und erstklassige Verarbeitung auszeichnet. Im Vergleich zu den Standards am Markt steht „Echt Hauser“ für eine erweiterte Palette an ausgesuchten Elementen. Dazu gehören attraktive Echtholzböden, moderne Haustechnik, eine exklusive Sanitärausstattung und ausgezeichnete Kücheneinrichtungen. Unsere Bau- und Leistungsbeschreibung entspricht dem „ECHT HAUSER“- Standard, von dem du dich in unserem Musterhaus Jubiläum „in echt“ überzeugen kannst.
Wie sicher ist der Einzugstermin?
Wenn du mit HAUSER baust, hast du dank unseres ausgereiften Bausystems einen Vorteil, der dich von den meisten anderen Bauherren unterscheidet: Du kennst bereits am Tag des Vertragsabschlusses verbindlich den Tag deines Einzuges und sogar den Tag deines Richtfestes. Das gibt Planungssicherheit, die sich doppelt auszahlt: in geschonten Nerven und geschonten Finanzen (keine Doppelbelastung durch Miete und Baufinanzierung).
Was tun HAUSER-Häuser für deine Gesundheit?
Dank vorgetrockneter Wände ist schon bei deinem Einzug ein wesentlicher Gesundheitsfaktor für dein Wohnleben gegeben: keine Beeinträchtigung der Wohnluft durch zu viel Feuchtigkeit im Mauerwerk. Dass es dabei ein Gebäudeleben lang bleibt, stellt unter anderem der natürliche Mineralbaustoff Liapor sicher, durch den das Raumklima im Haus automatisch reguliert wird. Dieser Effekt kann durch ein ökologisches Wärmedämmverbundsystem aus Holzweichfaser, das wir Ihnen gegen Aufpreis anbieten, noch weiter verbessert werden. Durch die massive Bauweise genießt du höheren Schutz gegen Außenlärm und eine höhere Abschirmung von anderen Umwelteinflüssen. Und darauf sind wir besonders stolz: Unsere KFW-55-Häuser funktionieren durch die Wandspeicherung mit dem Naturbaustoff Liapor ohne Lüftungsanlage! Fenster auf, frische Luft und Vogelgezwischter rein!
Wie hochwertig ist die Standard-Ausstattung eines HAUSER-Hauses?
Die Standard-Ausstattung unserer Häuser besticht durch hohe Qualität und wertige Materialien. Eine moderne nachhaltige Heizungsanlage, hochwertige Sanitärinstallationen, sehr gut isolierte Fenster und Türen und eine funktionale Elektroinstallation sorgen für besten Wohnkomfort. Die Böden sind mit attraktiven, langlebigen Materialien ausgestattet, ebenso die Küche sowie die solide Innentreppe. Du kannst deine Ausstattung flexibel erweitern oder auch deinen Kaufpreis durch Eigenleistung senken. Wir gehen auf deine individuellen Wünsche ein.
Ist ein HAUSER-Haus teuer?
Ob Einfamilienhaus, Mehrfamilienhaus, Doppelhaus oder Bungalow – HAUSER baut individuelle Häuser von massiver Bauqualität. Auch wenn das zunächst einmal nach eher hohen Kosten klingt, profitieren Hauser-Bauherren ganz wesentlich von zwei preissenkenden Faktoren: 1. Unsere Beratung und Planung beruht auf sogenannten Hausplattformen. Dabei handelt es sich um unterschiedliche Basiskonzepte für jeden Wohnstil, die von vielen Baufamilien erprobt und optimiert sind 2. Hauser-Häuser sind Massivhäuser in Fertigbauweise. Obwohl dein Haus massiv gebaut ist, gelten die typischen Kostensenker eines Fertighauses – standardisierte, wetterunabhängige Vorproduktion in der Werkshalle, schnelle und effiziente Montage vor Ort und Festpreisgarantie bei Vertragsabschluss. Mit HAUSER entscheidest du dich also für massive Wertigkeit und sicherst dir zugleich die Kostenvorteile der Fertighaus-Bauweise. Unsere Kunden kommen zu 95 % durch Weiterempfehlungen, dadurch entfallen weitestgehend hohe Werbekosten. Das gleiche Prinzip gilt für Einsparung bei enormen Kosten durch teure Standmieten in Musterhauszentren. Wir nutzen unsere eigenen Flächen und verkaufen die Häuser später weiter. Und durch die Ausführung vieler Prozesse im Haus (wie Vertrieb, Produktion, Erdbau) und Wahl regionaler Handwerker können viele weitere Kosten gespart werden.
Noch mehr Fragen rund ums Bauen?
HAUSER-FAQMassiv anders.
Weil wir anders denken, anders handeln und anders bauen.
Wir hinterfragen Gewohnheiten, setzen auf echte Transparenz und verbinden Verlässlichkeit mit echter Menschlichkeit. So entsteht nicht nur ein Haus, sondern ein Zuhause, wie wir sagen ein DAHOAM – massiv individuell, massiv wertvoll, massiv anders.